Oficinas Negocia Business Area. Aguadulce, Almería

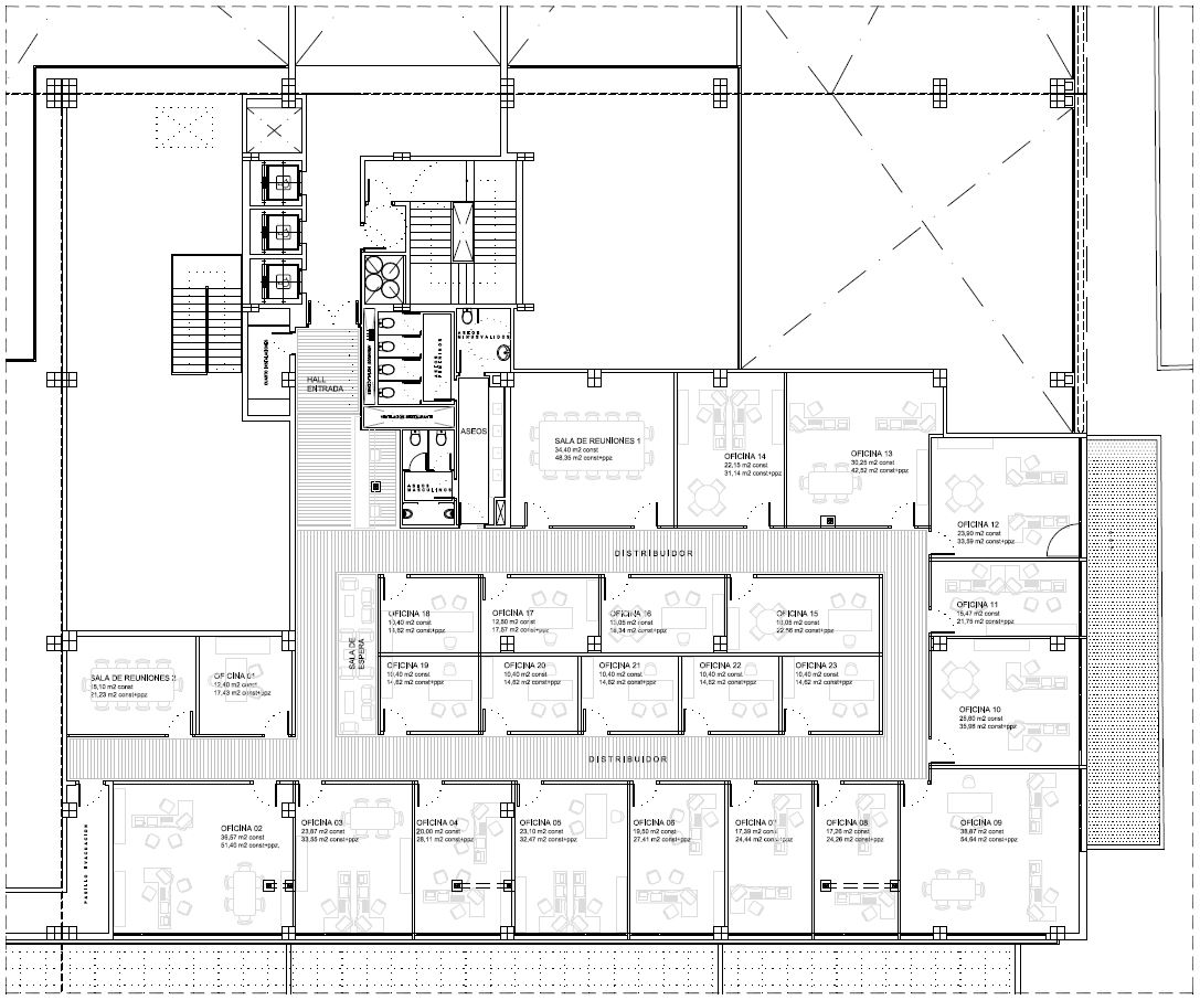
En el año 2011 se acomete la reforma de Local sin uso, de 600 m2, ubicado en Edificio de uso terciario, para albergar un espacio de oficinas administrativas en régimen de alquiler.

La facilidad de lectura de los espacios, la simplicidad en recorridos, la transparencia de las divisiones y la flexibilidad de la propuesta marcan los objetivos de la actuación.