ADECUACIÓN DE ESPACIO A CAFETERÍA AUTOSERVICIO. AGUADULCE, ALMERÍA

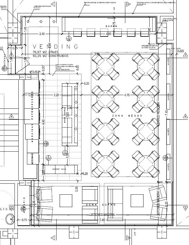
Adecuación de un espacio interior sin uso en edificio existente destinado a oficinas, para crear una Zona de reunión y de café tipo autoservicio.

Tipología

Interiorismo y Reformas

Cliente

Privado

Superficie

92 m2

Año

2012

Estado

Proyectado