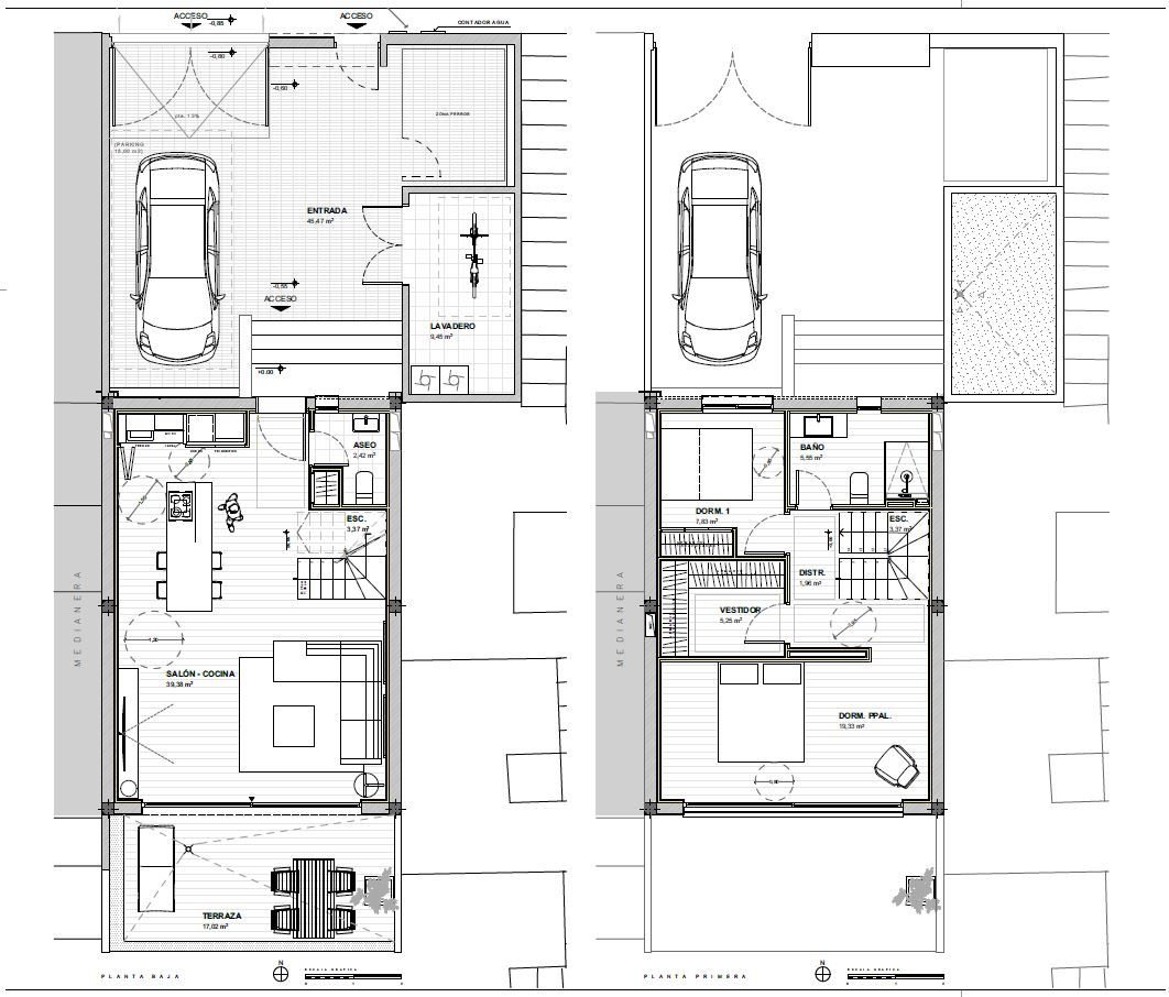
REFORMA INTEGRAL DE VIVIENDA DUPLEX EN AGUADULCE

Proyecto. Año 2018. Renovación total de vivienda en Aguadulce, abriéndose a las vistas de la Bahía. Este proyecto se ha centrado en la búsqueda de la máxima luz natural y los espacios diáfanos, dotando a la vivienda de una estética minimalista.

Tipología

Reformas e interiorismo

Cliente

Privado

Superficie

180 m2

Año

2018

Estado

Proyectado